Elle Mckenzie Designs
Elle Mckenzie Portfolio
Create Your First Project
Start adding your projects to your portfolio. Click on "Manage Projects" to get started
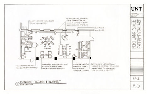
Experimental Art Classroom
The design plan for Portland State University’s School of Art and Design: Experimental Art Classroom will embody Bauhaus Design principles and Industrial themes joining the architecture of the building and the efforts to preserve the history of Portland, Oregon. This design is expected to meet the school’s standard of LEED certification as well as accommodations for students and faculty through Universal Design.
The space will be minimalistic and flexible with a neutral, cool-tone analogous color palette with an emphasis on natural finishes and chemical resistant materials. The principles focused on are asymmetry, repetition, transition, emphasis and unity. The elements used are vertical line, shape, and light maximizing the opportunity for creativity and unique integrations. elements and principles.





























